収益物件

【売主】蘇我宮崎 新築1棟アパート

toyo-shueki-chibashi-chuoku-miyazaki-1
previous arrow
next arrow
toyo-shueki-chibashi-chuoku-miyazaki-1
toyo-shueki-chibashi-chuoku-miyazaki-2
toyo-shueki-chibashi-chuoku-miyazaki-3
toyo-shueki-chibashi-chuoku-miyazaki-4
toyo-shueki-chibashi-chuoku-miyazaki-5
toyo-shueki-chibashi-chuoku-miyazaki-6
previous arrow
next arrow

仲介手数料不要の一棟アパート! ■満室想定年間収入(共益費等含む) 10,084,800円 ■満室想定利回り 約6.0% ■住宅性能評価劣化等級3級取得の為、35年長期融資のご相談可能です(金融機関により異なる場合あり)。 ■売主直接取引で安心・スムーズな購入手続きができます。 ■共有部 ・オートロックやTVモニターホンなどのセキュリティ対策あり。 ・駐輪場、バイク置き場あり。 ・敷地内ごみ置き場あり。 ■専有部 ・3階部分は容積率を余すことなく利用を考え、ロフトを設けました。 ・追い焚きや浴室乾燥、システムキッチンなど新築に求められる設備も充実。

利回り6.0%

販売価格16,800万円

所在地 千葉市中央区宮崎1-9-14 GoogleMapで確認する
交通 JR京葉線「蘇我」駅 徒歩11分
構造 木造3階建 総戸数 12戸
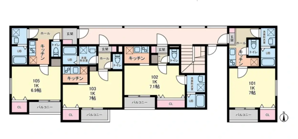
間取り 1K(3階部分ロフト付き)、バイク置き場2台、駐輪場12台 築年月 令和8年12月
土地面積 267.14㎡ (実測) 建物面積 320.22㎡
建蔽率 60% 容積率 200%
用途地域 第一種中高層住居専用地域 接道 -
都市計画 市街化区域 土地権利 所有権
現況 更地 引渡時期 相談
設備 東京電力、都市ガス、公営水道、本下水、オートロック、追い焚き、温水洗浄便座、浴室乾燥機、敷地内ごみ捨て場、自転車置き場(1世帯1台)、2口コンロシステムキッチン、独立洗面台、全室南向き、J-COM導入、TVモニターホン、バイク置き場(2台)、ロフト(3階部分)
備考 ・第一種高度地区 ・売主につき仲介手数料不要。 ・建築確認番号:第JAC-H26-10-0129号 ・住宅性能評価劣化等級3級取得の為、35年長期融資のご相談可能です(金融機関により異なる可能性あり)。

この物件の問い合わせはこちら

お電話でのお問い合わせも承っております。
※お電話の際は「ホームページを見た」とお伝えください。

043-290-0300

【営業時間】09:00-19:00(定休日/火曜・水曜)

お問い合わせは下記フォームより承っております。
必須項目を全てご入力後、個人情報保護方針をご一読の上「送信」ボタンを押して送信してください。
送信内容確認後、3営業日以内に担当者から折り返しのご連絡をさせていただきます。

    お名前 必須

    法人の場合は法人名

    メールアドレス 必須

    半角英数字でご入力してください。

    電話番号 必須

    半角数字、ハイフン(-)なしでご入力してください。

    お問い合わせ種別 必須

    ご不明点、ご質問などありましたらこちらに入力してください。